Two Bedroom Stock Barndominium Plans
Click here now to check out the 3-bedroom Floor Plans
These can be built as traditional barndo inside a pole barn or as a conventional stick build. Your building location will determine which option is best. We can customize these plans for your build. Custom changes often include a different configuration for the shop as well as interior changes like room size changes and kitchen configuration.
Autumn 40′ x 20′ – 2 bedroom -1 bathroom (800 sq ft living 40′ x 40′ shop)
The Autumn, a 40×60 barndominium, features compact living space perfect for a guest house or a luxurious “tiny house” feel. This plan is ideal for a loft, either adding a bonus room or more bedrooms and bathrooms. Endless options.
Autumn Version 2 Barndominium 40′ x 80′ – 2 Bedrooms 2 Bathrooms ( 3,200 sq ft Plus Shop )


[
Changes for Version 2 include:
The living area is mirrored left to right and top to bottom placing the living area on the right side of the plan and bedrooms on the top.
This plan also adds a second story loft with access from the shop.
The bathroom has a shower instead of a bathtub.
The washer and dryer area is converted to a closet and moved to a room in the shop which also contains a half bath and water heater.
The exterior door from the living room is now a double door accessing the wrap around porch to the right.
The living room is approx. 16′ top to bottom and is 10′ from the wall to the kitchen cabinet next to the sink.
The wrap around porch is 12′ deep and extends 28′ in each direction.
The shop is approx. 60′ x 40′ including the stairs and mechanical room.
All overhead doors are 14′ wide.
This plan also shows two roof pitches with eave heights of 16′ and 18′.
If a larger bathroom or closet is desired the closet can be moved down to free up approx. 2 feet.
The master bedroom is 14′ wide by 10.5′.
The master closet is 5′ wide by 6.5′.
Bedroom 2 is 10′ wide by ~10′.
Autumn Version 4 Barndominium 40′ x 60′ – 2 Bedroom 2 Bathroom ( 2,400 sq ft Plus 39′ x 38′ Garage )
Autumn Barndominium Plan Version 4 changes
The living area has been mirrored from the left to the right. The tub has been replaced with a shower all room sizes remain the same as the original.
A wrap around porch has been added to the living side of the plan and a roof extension porch has been added to the shop side.
The wrap around porch is 10′ deep, 30′ left to right and 25′ top to bottom.
The roof extension porch is 12′ deep and spans the entire 40′ from top to bottom.
The overhead door to the 40’x40′ shop is 16′ wide.
Autumn Version 7 Barndominium 40′ x 60′ – 2 Bedroom 2 Bathroom ( 1,600 sq ft Garage )
Autumn Version 7 floor plan is an 800 sq ft plan like the original but with the living area mirrored left to right.
This plan has an added half bath to the shop area.
It also has a wrap around porch which is 8′ deep on the top section and 20′ deep on the right. It is 40′ left to right and 50′ from top to bottom.
The shop is 1,600 sq ft (40′ by 40′) and the overhead garage doors are all 12′ wide.
Autumn Version 8 Barndominium 40′ x 60′ – 2 Bedroom 1 Bathroom ( 1,500 sq ft Garage )
Autumn Version 8 plan is another example of the original plan rotated 90 degrees inside a larger building.
The room sizes are the same as the original.
This plan adds a wash in the garage along with HVAC and the water heater.
The wrap around porch is 8′ deep on the left and 12′ deep on the bottom. It spans 31′ on the left and 36′ across the bottom.
The garage is 1,500 sq ft and has three 12′ wide garage doors.
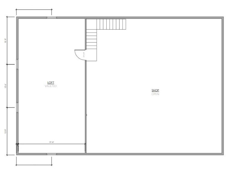
Autumn Version 9 Barndominium 40′ x 50′ – 2 Bedroom 2 Bathroom ( 2,000 sqft 31′ x 38′ Garage )
Version 9 of the Autumn plans change the building size to 40′ by 52′ 5″.
The living area on the first floor is the same as the original but it has an additional full bathroom in the shop and a loft accessed from the shop.
This plan was designed for a building with a 14′ eave height and a 6:12 roof pitch to provide more ceiling height in the loft area.
The loft area is 418 sq ft (19′ wide by 22′).
The garage is approx. 32′ by 40′ (minus the the area of the stairs, bathroom and cabinets.
The roof extension porch is 16′ deep by 40′.
Autumn Version 10 Barndominium 40′ x 60′ – 2 Bedroom 2 Bathroom ( 2,000 sqft Plus Shop )


Version 10 of the Autumn floor plan is another 2 story version with an open loft over the living area.
The 1st floor plan is like the original but has been mirrored top to bottom.
The built in island in the kitchen has been removed.
The shop area has a 1/2 bath and stairs for the loft area.
The wrap around porch is 8′ deep and approx. 21′ long top to bottom and left to right.
The roof extension porch is 20′ deep by 40′.
The garage doors are both 14′ wide.
The plan was designed with a 16′ eave height and a 4:12 roof pitch.
Click here for additional versions of the Autumn floor plan
Ambrose 30′ x 42′ – 2 bedroom -2 bathroom (1,260 sq ft living 30′ x 28′ shop)
The Ambrose features a laundry/mud room and a large living room. An optional wrap-around porch and sliding doors would add light and immense character.
Beatrice 30′ x 30′- 2 bedroom -1 bathroom (900 sq ft living 30′ x 30′ shop)
The Beatrice kitchen features a large center island. Customize the kitchen by moving the range or sink to the island or even adding a vegetable sink. In lieu of an island, the countertop could be extended and a breakfast bar added.
Ike 25‘x 50’- 2 bedroom – 2 bathroom (1,250 sq ft main living)
The Ike Barndominium Floor Plan is a small 2-story barndominium with a 25′ wide building. It was designed for a cabin feel with incredible window placement and is a barndominium with a wrap-around porch to capture views no matter where you are standing or sitting. It has two bedrooms, but one bedroom can be an Office. The second-story loft is a great place to lounge and take in views from up high. A detached shop can be an addition to this plan.
Irene 35′ x 42′ – 2 bedroom – 2 bathroom (1,470 sq ft living 28′ x 35′ shop)
The Irene floor plan offers a convenient laundry and mud room as you enter from the shop. The master suite has a walk-in closet.
River 40′ x 30′ – 2 bedroom – 2 bathroom (1,200 sq ft living 40′ x 30′ shop)
The River 40×60 barndominium floor plans with shop feature a spacious living room area with access to a loft above the bedroom areas, making it a two-story barndominium.
Scarlett 40′ x 30′ – 2 bedroom -2 bathroom (1,200 sq ft living 40′ x 30′ shop)
The Scarlett is a 40×60 barndominium floor plan with a shop. It offers two bedrooms with walk-in closets and two full bathrooms. The laundry closet is conveniently located by the bedrooms. The layout is ideal for a loft over the bedrooms and bathrooms. A vaulted ceiling in the great room with exposed ductwork would give a modern industrial look.
Click here now to check out the 3-bedroom Floor Plans
Click here now to check out the 4-bedroom Floor Plans
Click here now to check out the 5-bedroom Floor Plans
Click here now to check out the 6+ bedroom Floor Plans
Click here now to check out 1-bedroom & studio Floor Plans
Click here now to check out the 2-bedroom Floor Plans